Lancefield Quay, Glasgow

Regeneration
Vibrant
Social
Community

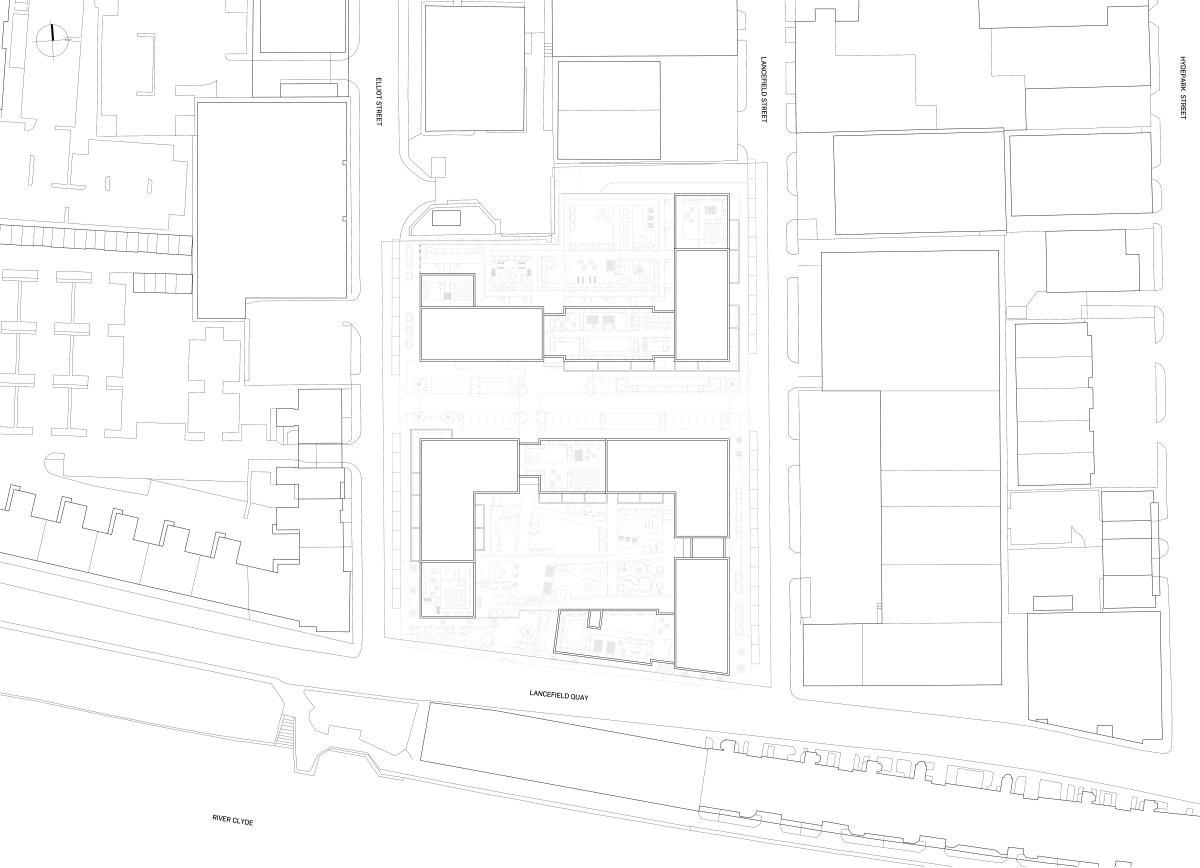
Lancefield Quay is an ambitious residential led masterplan, promoting the regeneration of the River Clyde Corridor in Glasgow City Centre.

The Lancefield Quay Masterplan is a vibrant residential-led mixed-use neighbourhood which promotes community and activation of the River Clyde Corridor. The masterplan forms two central courtyards, one which is more public in nature, and opens out towards the river Clyde and the second which is more private. Both are linked at ground level, and present inclusive public realm and improved permeability through the site.

 

The massing, which ranges from 5 to 22 storeys,  was developed in response to the contextual constraints, microclimatic considerations, planning policy, whilst achieving a density of development which met the client brief.  It creates a series of activated roof top gardens with views across the River Clyde and the wider cityscape. Incorporating a mix of public, semi-public, and private garden areas to create a hybrid of activity and interaction.

The treatment of our elevations has been carefully considered as part of a thorough design development process, aiming to respond contextually whilst remaining recognisably contemporary. Our proposal presents an opportunity to break down the scale of the building façade through a playful expression of the programme. Adopting a façade system that expresses common language and material choice to create visual interest and human scale. Our aim is to create a sequence of buildings that acknowledge adjacent textures and materials, assisting in the transition in scale between lower and higher buildings in the vicinity.

LQG

Client:

MODA Living Ltd

Status:

Planning Approved

Budget:

Circa £160,000,000

Size:

709 Homes; Build to Rent

Collaborators:

Project Manager : Thomas and Adamson
Quantity Surveyor : CBA
Planning Consultant : Porter Planning
S+C : Goodsons Associates
M+E : Henderson Warnock
Landscape : OOBE
Fire : Jensen Hughes
Daylight Consultant : Proximity
Wind Consultant : ArcAero
Facade Consultant : Buro Happold
Acoustic Consultant : Bureau Veritas
Principle Designer : Kirk & Marsh