Cambridge St, Glasgow

Social
Bold
Contemporary
Activation

Our proposals for Cambridge Street have been re-imagined as student accommodation offering extensive views across the city.

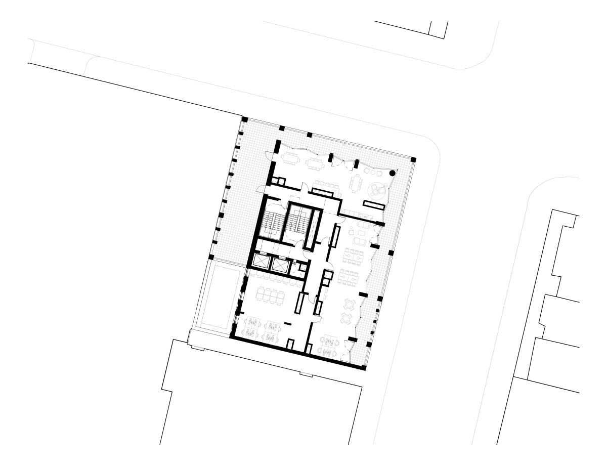
Following the approval of our apart-hotel proposals, due to changing market needs, we have re-designed our proposals to accommodate student accommodation. The proposal also includes a flexible events space at the ground floor which can be used by the community.

This change in use, with it’s diverse program requirements, allowed for more design freedom, and introduction of a more activated facade. The proposal provides generous student amenity, all of which is provided with access to private external terraces to upper levels, allowing panoramic views of the city.

The original design intent established for the apart-hotel has been maintained, and where possible, improved. The proposal offers a mix of studio and cluster apartments. Each of the cluster apartments also includes a shared balcony, improving the quality and aspect for residents.

CSG

Client:

PMI Developments

Status:

Planning Approved

Budget:

£25,000,000

Size:

193 Student Beds

Collaborators:

Planning Consultant : Porter Planning Ltd
Project Manager : WSP
S+C : Pick Everard
M+E : KJ Tait
Fire : OFR
Acoustician : MZA Acoustics
BREEAM : Ensphere
PR Consultant : Streets-UK
Transport Consultant : Transport Planning Ltd
Visualisation Consultant : Visual Lane